PABÚ

Ficha técnica

Programa: Restaurante gastronómico
Alcance: Anteproyecto y Proyecto de Ejecución
Superficie: 251 m2
Cliente: Coco Montes (chef)
Dirección: Calle Panamá 4, Madrid
Fecha: Enero 2023

Estudio

Arquitectos: Néstor Montenegro Mateos / Marta Menéndez San Juan
Colaboradores: Alba Fernández / Paula González

Externos

Cocina: Kitchen Consult
Iluminación: Light & Studio

Este proyecto es el desembarco en Madrid del chef Coco Montes. El objetivo era muy claro, diseñar como sería su “casa” en Madrid, un proyecto familiar y con mucha personalidad, donde recibir y honrar a sus clientes.

En la primera reunión entendimos que sus ideas estaban muy claras y que el papel del estudio sería el de ayudar a que todo este imaginario pudiera llevarse a cabo con coherencia técnica y estética.

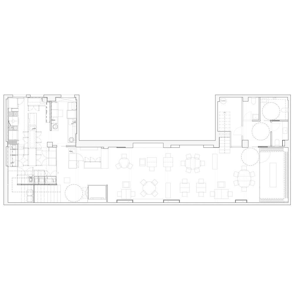
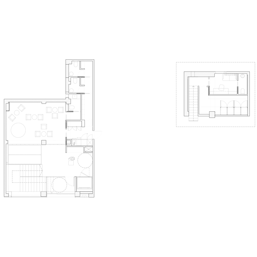
El local tiene dos plantas, siendo la planta sótano mucho mayor que la planta baja. Esta diferencia de superficies determinó que la mayor parte de la actividad tuviera que desarrollarse en la planta sótano. Este condicionante, y el deseo de que la cocina tuviera todo el protagonismo, condujeron a diseñar una fachada limpia y discreta, transparente y capaz de conectar visualmente la calle con la cocina, cubierta por un techo de vidrio que permite, incluso desde fuera, observar el orden milimétrico con el que el equipo realiza las diferentes elaboraciones. Y la entrada de luz natural.

La experiencia del cliente empieza en la calle, observando como se trabaja dentro. El equipo se expone de una forma extraordinaria. Al entrar los clientes al local, la planta calle funciona como recepción, donde poder tomar algo mientras esperan y mientras ven, desde esa planta, lo que sucede bajo sus pies. Esa honestidad de enseñar los procesos de trabajo de una forma tan evidente, acompaña la cocina de Coco Montes de principio a fin. Cocina de micro temporada, proveedores locales, respeto al producto y carta flexible.

El interiorismo se realizó con objetos y muebles familiares, acompañando la idea de casa. Maderas, piedra y tejidos texturizados que contrastan con tonos más neutros para los muebles hechos a medida. El fondo de vista lo ocupa la bodega, con posibilidad de ser visitada por los clientes.