ARZÁBAL
BERNABÉU

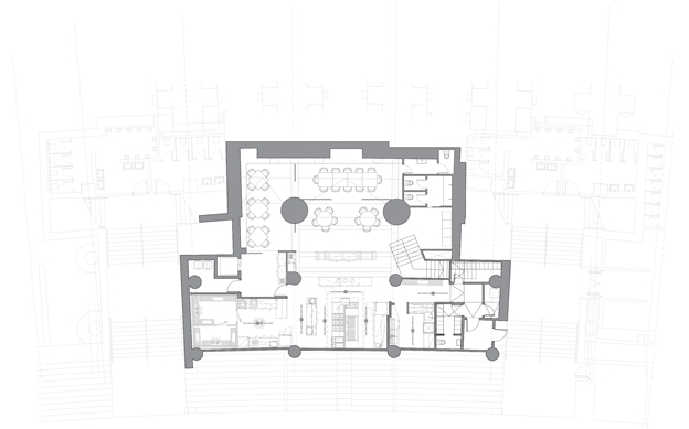
Ficha técnica

Programa: Restaurante
Alcance: Fase de concurso, Anteproyecto, Proyecto de Ejecución y Dirección de Obra
Superficie: 500 m²
Cliente: Grupo Arzábal
Dirección: Estadio Santiago Bernabéu, Puerta 33, Calle Rafael Salgado
Fecha: Diciembre 2025

Estudio

Arquitectos: Marta Menéndez San Juan / Néstor Montenegro Mateos

Externos

Aparejadores: Dirtec – Javier Mach y Javier González
Ingenieros: 3D3 Instalaciones
Interiorismo: Mil Studios
Iluminación: Light & Studio
Cocina: 4Retail
Constructora: 4Retail
Fotografía: Alba Gómez

El restaurante Arzábal Bernabéu, se encuentra en el renovado Estadio Santiago Bernabéu en Madrid, específicamente en la calle Rafael Salgado. Este espacio combina el lujo de la alta gastronomía con el ambiente vibrante del emblemático estadio, ofreciendo una experiencia única para los clientes. No es solo un restaurante, sino que se trata de una pieza clave para transformar el estadio en un lugar social, cultural y gastronómico. El restaurante se convierte así en un referente del diseño gastronómico madrileño, destacando por su integración de elementos arquitectónicos innovadores y una atmósfera cuidadosamente diseñada que se adapta a diferentes contextos​